美式注膠斷橋第一人,賦能工廠倡導者!
JQB-110 美式注膠斷橋三軌/六軌/懸浮窗
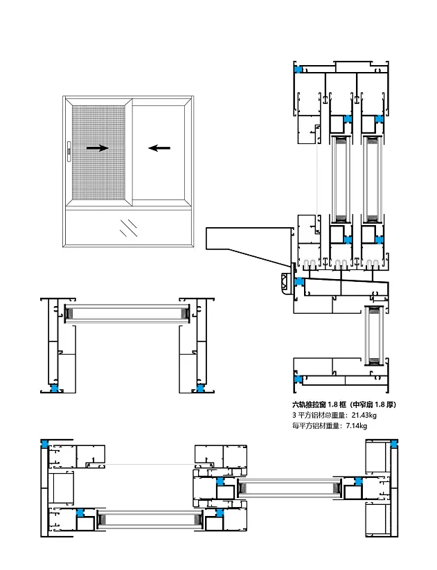
110 美式注膠斷橋三軌/六軌推拉窗/懸浮窗(美國技術)
三軌/六軌/懸浮美式注膠斷橋推拉窗(極窄/中窄扇)1.3/1.8/2.8厚
產品特點 Product characteristics
*解決穿條斷橋的隔熱條易收縮、滲水、不耐老化等問題。
*美式注膠斷橋鋁材與聚氨酯膠融為一體,真正做到永不收縮,永不滲水,強度更高,且斷橋膠抗老化 60-80年
*可選極窄扇、中窄扇,外框通用不變
*110六軌/懸浮推拉窗,80兩軌半窗扇通用,紗窗內外均可上防擺輪,雙下軌六軌道、雙滑輪設計推拉更順暢,型材用料足,厚度均衡且特殊受力位置加厚。
*懸浮推拉窗簡約、美觀大方,窗幅大,夾層玻璃塊大,六軌能夠做到很大程度的自然通風,在享受自然風光的同時,光照率也極高。
*嵌入式框包扇結構設計,確保框扇之間的密封,提升了整窗的防水性、氣密性、抗風壓性更安全,防盜三位一體。
*自動落鎖,更安全,型材設計采用歐洲標準五金槽口,連接多個鎖點,達到很好的防盜及密封作用。
*5+12A+5 中空玻璃或5mm 單玻可選
*隔熱條 10mm,隔熱條國標安全范圍為20mm 內。
*勾企采用汽車級密封膠條和硅化夾片毛條,勾企無空位,防沙防水更隔、下滑可裝超大扶手設計,可裝 LED 燈條,可做跳色,顏值感更新穎突出更具科技與時尚感,下不銹鋼軌道, 階梯坡道排水。
*推拉式開啟設計,最大限度的讓空間更通透,讓您擁有真正的大視野極窄看面設計,側裝自動鎖,使用更方便,經久耐用。
*固玻朝外解決滲水




